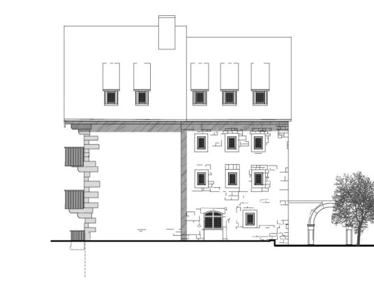
horngasse 3/4 in erfurt(augustiner bräu)
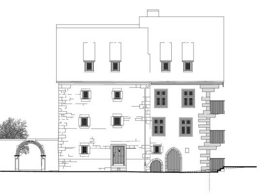
Die beiden aneinander gebauten Häuser befinden sich im historischen Stadtzentrum von Erfurt, unmittelbar am Breitstrom mit direkter Blickbeziehung auf die nördliche Häuserzeile der Krämerbrücke.
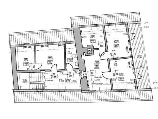
Das Quartier hinter der Krämerbrücke war ursprünglich dicht bebaut. Jedoch ist die einstige, mittelalterliche Struktur nicht mehr erkennbar. Heute bilden die beiden Gebäude einen einzeln stehenden, denkmalgeschützten Gebäudekomplex. Das Haus Horngasse 3, „Haus zur güldenen Distel“, stammt vermutlich aus dem 13. Jahrhundert. Das nebenstehende Renaissanceportal stellt noch einen Rest des ursprünglichen Nachbargebäudes dar. Das Gebäude Horngasse 4, „Haus zur Steinecke“, wurde vermutlich Anfang des 14. Jahrhunderts errichtet. Beide Häuser erfuhren im 20. Jahrhundert mehrfach Umbauten und Renovierungen.
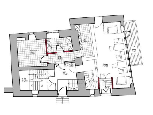
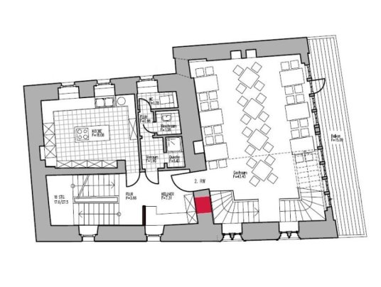
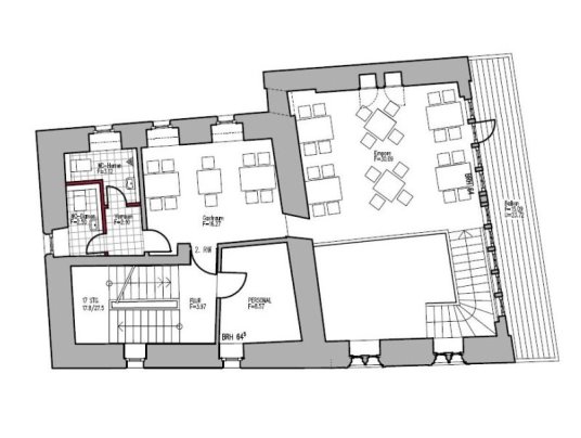
Bis Anfang des 19. Jahrhunderts wurde der Gebäudekomplex als Hospital und Studentenlazarett, bis zum ausgehenden 20. Jahrhundert als Bürogebäude vom Land Thüringen genutzt. Nach längerem Leerstand wurde das Gebäudeensemble durch die Edith-Haberland-Wagner-Stiftung, einer Gesellschafterin der Augustiner Brauerei München, erworben und zu einem Gasthaus umgebaut. Unser Büro war mit der Entwurfs- und Genehmigungsplanung beauftragt.



















